+34 971 698 242

This sunny building plot, situated in Sa Rapita, has an area of almost 760 sqm and offers the perfect opportunity to realise your dream of a lovely villa in a desirable location in Mallorca. A well-designed construction project for a modern 2-level family residence already exists, promising to fulfill all wishes for comfortable and stylish living.
Only a convenient 700 metres away is the picturesque promenade, with diverse restaurants, a bakery, and direct access to the beach and glittering sea, inviting to enjoy the Mallorcan sun and a refreshing swim. Enjoy the tranquil neighbourhood although being close to all amenities, and only 30 minutes from Palma.
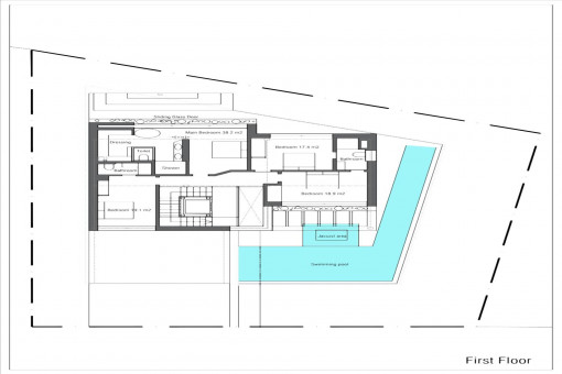
The planned project foresees a spacious, two-storey living concept with a carefully-designed room layout. The ground floor includes an open fitted kitchen which combines seamlessly with the elegant living/dining area with large window frontages promising the entry of ample natural light with views of the surrounding nature embellishing your new home. The directly adjoining exterior area with pool invites to relax and enjoy a refreshing dip on hotter summer days.
On the second floor are 4 generous bedrooms, 2 of which have their own en-suite bathroom - perfect for guests or family. A special highlight is the cellar area which could be used as a compact wellness zone with gym and sauna, so that relaxing hours in your personal oasis of peace after a long day at the beach can be enjoyed.
Give free rein to your imagination, and create your own personal paradise in this enchanting setting, only 30 minutes from Palma airport.
The rural town of Campos in the South-east of the island is conveniently situated halfway between Llucmajor and Santanyí. Surrounded by an extensive agricultural area, the town offers many shops for daily needs, restaurants and sporting facilities. There are only a few defence towers left of the old medieval town. Today Campos is a lively community, which especially on market days attracts many visitors.
The famous, long sandy beach of Es Trenc with its dunes and turquoise blue sea belongs to the municipality of Campos and offers beach fun with Caribean flair.
The airport can be reached in 25 minutes, the island capital Palma is only 35 km away.
This map shows the situation of the Sa Rapita in Mallorca.
We have compiled a selection of the most beautiful beaches, golf courses, marinas and hotels and restaurants for you.
All information is correct to the best of our knowledge. Errors and prior sale excepted. This prospectus is purely for information purposes. Only the notarized deed of sale is legally binding.
reference:
121867
location:
Sa Rapita
plot area:
756 m²
dev. Potential:
![]()
dev. area:
-
building permit:
-
sea view:
-
price:
€ 480,000.-
Online- viewing:
Thank you very much for your enquiry!
We will process your request shortly and get back to you as soon as possible.