+34 971 698 242

An exceptional building plot with a total area of 53,503 sqm is offered for sale in an attractive location. The property is sold with an already approved basic project and benefits from an advanced licensing status. This allows you to enjoy a significantly reduced construction timeline as well as full legal security within the framework of current building regulations – a significant advantage for private use.
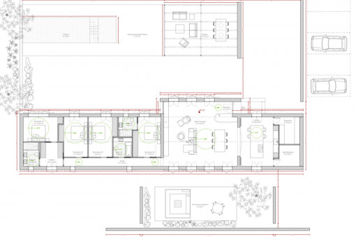
The planned residence impresses with a well-conceived layout and generous architecture in a high-quality finca style. With a ground floor living area of 236.55 sqm, the design includes a representative living and dining area of 61 sqm, offering ample space for social gatherings and an open, airy atmosphere. The separate kitchen of 24.90 sqm, including a pantry, meets the highest standards of comfort and functionality. The layout is completed by 4 spacious double bedrooms, 3 elegant bathrooms, a dressing area, hallway, and a technical room. The total building volume amounts to 859.89 m³, underlining the solid construction.
The outdoor areas are equally impressive: more than 100 sqm of terraces and exterior spaces create ideal conditions for enjoying Mediterranean outdoor living. A 51.60 sqm pergola provides sheltered relaxation areas, while the 33 sqm swimming pool (11 x 3 m) ensures refreshing moments of leisure. The expansive plot guarantees privacy, tranquility, and a wide range of design possibilities.
This project offers the rare combination of a large plot, approved planning, and high legal certainty. It is ideal as a private project for building an exclusive finca in Mallorca.
The plot is situated in an attractive location just outside Portocolom and can be reached in approximately three minutes by car. This charming coastal town is known for its picturesque natural harbour, relaxed atmosphere, and a wide selection of restaurants, cafés, and small boutiques along the waterfront promenade.
The town of Felanitx is only about ten minutes away. Here you will find numerous shopping facilities, supermarkets, bakeries, and other stores for everyday needs. The traditional weekly market is particularly popular, offering regional products and authentic Mallorcan flair.
The sea and the nearest bathing area are also less than ten minutes away, further highlighting the excellent location of the plot. This property therefore combines peaceful, nature-oriented living with excellent access to the coast, harbour life, and full urban infrastructure.
This map shows the situation of the Portocolom in Mallorca.
We have compiled a selection of the most beautiful beaches, golf courses, marinas and hotels and restaurants for you.
All information is correct to the best of our knowledge. Errors and prior sale excepted. This prospectus is purely for information purposes. Only the notarized deed of sale is legally binding.
reference:
122651
location:
Portocolom
plot area:
53.003 m²
dev. Potential:
![]()
dev. area:
-
building permit:
-
sea view:
-
price:
€ 292,000.-
Online- viewing:
Thank you very much for your enquiry!
We will process your request shortly and get back to you as soon as possible.
Soller: House in the process of renovation with key-in-hand possibility in Soller
Pollensa: Modernized house in the heart of Pollensa with mountain views and rental license
Genova: Quiet detached house with garage, pool and nice sea views in Génova
Cala Mayor: Bright and Fully Renovated Apartment with Beautiful Sea Views in Cala Major