+34 971 698 242

This wonderful town-house is located in a small, quiet side-street near to the 'Golden Mile' of Palma - the famous Paseo del Borne - and is only a 2-minute walk from Jaime lll avenue with its fine boutiques and shops. It is Just a stone's throw from the 'street of the gallery owners', with diverse international contemporary art shops.
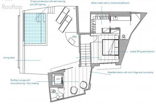
A highlight of the house is the private roof terrace, which has a covered area with a small breakfast- kitchen, a sun deck with lounge, a private pool perfect for cooling off on hotter summer days, and an outdoor barbeque-kitchen.
The entrance area provides a traditional ambience with a typical Mallorcan stone floor and modern wooden elements. A private garage with an elaborate ceiling design, indirect lighting elements, and Mares stone walls provides ample space for a car. There is also a convenient lift connecting all levels of the house, including the terrace.
The main living area is located on the 2nd floor of the property, and its heart is an elegant, fitted designer-kitchen by Poliform which has a cooking island in fine Italian natural stone, and a wooden snack bar. An elegant lounge area with a gas-fireplace by Kalfire in a stone and wood setting provides a cosy ambience even during the cooler months of the year.
On the 1st floor is the spacious master-suite with en-suite bathroom. The elegant suite boasts a ceiling height of 3.5 metres, setting new stylistic accents. Matt black fittings and a rain-shower from ICONICO and a walk-in wardrobe provide a very individual style. An additional guest room with its own bathroom is also located on this living level and would be ideal for children or guests.
This exceptional offer is completed by the VIP guest suite, with a bedroom flooded with natural light and providing views over the inner courtyard. This exclusive ambience is complemented by a walk-in wardrobe and a bathroom.
For initial orientation you can use the “Porta Holiday Returns Calculator” without obligation to calculate your potential returns from holiday letting.
NB: Due to the current legal situation it is possible that in certain municipalities renting restrictions may apply, or new touristic licences may not be granted. Your Porta Mallorquina real estate consultant will be pleased to advise you whether the property you have chosen is affected.
Go to Returns Calculator.
Palma's old town is ideal for those wishing to live in the midst of city life, with its small, sleepy squares, narrow alleys, wonderfully picturesque buildings, lively shopping streets and restaurants and cafes.
In this part of the town something is always happening, and here the most places of interest can be found including the famous cathedral La Seu, built between the 14th and 19th centuries, the Arab baths, the Almundaina palace or the well-known nightlife-quarter La Lonja. The history of the capital of Mallorca can truly be felt here.
Take a stroll down the narrow alleys of the old town of Palma and drink a coffee or a glass of wine on one of the little squares. Let yourself be enchanted by the charm of 'the pearl of the Mediterranean', and you will surely never forget Palma.
Nearby is the 'Plaza Espana' from where there are connections to the very well-organised traffic system, no matter whether you are travelling by bus, train or taxi.
This map shows the situation of the Palma de Mallorca Old Town in Mallorca.
We have compiled a selection of the most beautiful beaches, golf courses, marinas and hotels and restaurants for you.
All information is correct to the best of our knowledge. Errors and prior sale excepted. This prospectus is purely for information purposes. Only the notarized deed of sale is legally binding.
reference:
077960
location:
Palma de Mallorca Old Town
constructed area:
320 m²
plot area:
117 m²
bedrooms:
3
bathrooms:
3
swimming pool:
![]()
sea view:
-
energy certificate:
in process
price:
on request
Online- viewing:
Thank you very much for your enquiry!
We will process your request shortly and get back to you as soon as possible.